Меню Поиск Разместить Избранное Кабинет

Продается 2-комн. квартира, 42.8 м²

Объявление 280870, активно до 24.11.2025
16
3 600 000 ₽ 84 112 ₽/м²
Следить за ценой

Подписка на изменение цены

Мы сообщим вам, если цена объекта изменится
или на почту
Нажимая кнопку «Подписаться» вы соглашаетесь с политикой конфиденциальности
Купить в ипотеку:
Адрес
Омск, Октябрьский, 50 лет ВЛКСМ ул, д. 5
Тип жилья
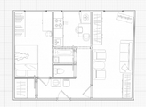
Общая площадь
42.8 м²
Площадь кухни
5 м²
Этаж / всего
1 / 5
Тип дома
Панельный
Санузел
Раздельный
Ремонт/отделка
Хорошее состояние

Данную квартиру можно приобрести по ставке 13.75% Представляем вашему вниманию уютную двухкомнатную квартиру-бабочку в тихом и зеленом спальном районе! Это идеальное место для тех, кто ценит удобство, спокойствие и функциональность. Почему эта Номер объявления SD55-280870.

По вопросам покупки обращаться:
Самолет плюс Омск-центр
Позвонить
Скажите владельцу объявления, что нашли это объявление на СИБДОМЕ

Похожие объявления

Не можете найти нужный вариант?

Оставьте заявку на подбор объекта и мы отправим ее трем проверенным нами агентствам недвижимости. Они возьмут все вопросы поиска на себя.
Нажимая кнопку «Отправить заявку» вы соглашаетесь с политикой конфиденциальности.